ゆがふBizタワー浦添港川 ご入居テナント 各位
拝啓 貴社にはますますご清栄のこととお喜び申し上げます。平素は格別のご高配を賜り、厚くお礼申し上げます。
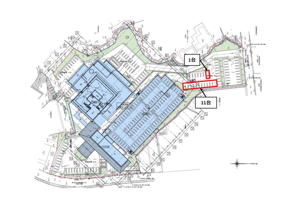
さて、表題の件につきまして北側駐車場にて作業を実施致します。
皆様へはご迷惑をお掛け致しますが、ご理解とご協力のほど宜しくお願い致します。
敬具
記
実施日 令和7年11月8日(土) 11月9日(日)
作業時間 9:00~17:00
・工事施工中、通行にご迷惑をおかけすることがございますが通行時は作業を一旦停止いたしますのでお声か け下さい。
・実施期間中は当該駐車場にカラーコーンを設置いたします。駐車はできませんのでご協力お願いいたします。(11月7日(金)18:00頃よりカラーコーン設置予定)
・雨天等のため工事が延期する場合がございます。その際は再度ご連絡いたします。
・場所は図面を添付いたしますのでご参照ください。

ゆがふBizタワー浦添港川 防災センター
℡)098-876-8436
担当:宇都
